ID CP2531617
3 camere Tineretului ( 400 m metrou )
    Această proprietate nu mai este activă,
    
    te invităm să vizualizezi proprietăți similare
  
ID CP2531617
175,000 €
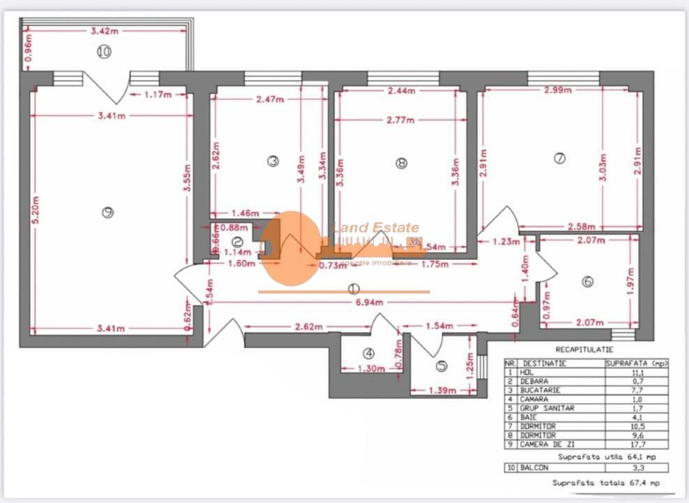
Va propunem spre vanzare un apartament cu 3 camere Tineretului, la 5 minute distanta de Metrou, decomandat, 2 bai, an 1985.
Apartamentul se afla la etajul 3 din 10 .
Apartamentul este pregătit de renovare după bunul plac, fiind decopertat si eliberat molozul. Teava de gaze este la usa si are aprobare pentru centrala. Se ofera si proiectul pentru design de interior.
Blocul este reabilitat.
Acces facil la mijloace de transport in comun, parc, loc de joaca pentru copii , scoala gimnaziala,gradinita,facultati piata, supermarketuri,
 
         
         
         
         
         
         
         
         
         
         
         
         
         
         
         
         
         
         
         
         
         
         
         
        