ID CP2804795

2 camere Upground Pipera ( parcare )

ID CP2804795

225,000 €

Apartament cu 2 camere de vânzare
Aviatiei, Bucuresti
82 mp
2018

Va ofer spre vanzare acest apartament spatios si luminos cu 2 camere , cu loc de parcare subteran disponibil (la un cost suplimentar), complet utilat si mobilat, in complexul UpGround Residence, la 5 minute de mers pe jos pana la Metrou Pipera, in zona de bussines din Nordul Bucurestiului, intr-o comunitate tanara, vibranta, activa si selecta.

Ideal pentru cei care imbina armonios viata personala cu viata profesionala!

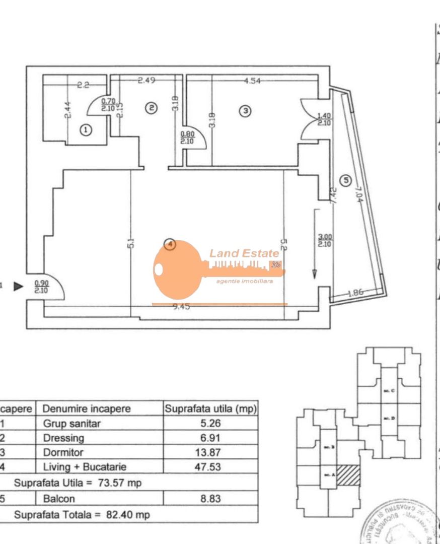
Proprietatea este la etajul 6/16, cu vedere panoramica spectaculoasa, cu o compartimentare inteligenta, cu suprafata utIla totala de 82 mp (73,6 mp plus balcon de 8,8 mp), fiind compusa din:

- living spatios de 48 mp, cu zona de relaxare si zona de dining; aer conditionat, TV, si multiple spatii de depozitare

- bucatarie open space complet utilata si mobilata

- dormitor de 14 mp plus zona de dressing de 7 mp; dormitorul are pat matrimonial si un dulap

- baie generoasa cu cada de 5,3 mp

- balcon spatios de 9 mp cu vedere panoramica spectaculoasa

- loc de parcare disponibil la un cost suplimentar de 22.000 eur, ; in parcarea subterana la -3, cu acces direct cu liftul

Facilități/ Avantaje complex si locatie: 5 min pana la Metrou Pipera - 300m

- in complex: magazin Mega Image, curatatorie, farmacie, saloane de înfrumusețare, restaurante multiple și World Class pentru pasionații de sport; studio de yoga.

- la 300 m - Kaufland

- Acces rapid la autostrada A3 și A0, care conectează cu ușurință toate direcțiile

- foarte aproape de Promenda Mall, Plaza Pipera, Mobexpert

Citește mai mult

  • Tip apartament
    Apartament
  • Compartimentare
    Semidecomandat
  • Număr camere
    2
  • Dormitoare
    1
  • Număr bucătării
    1
  • Număr băi
    1
  • Etaj
    6
  • Suprafață utilă
    82 mp
  • Suprafață construită
    92 mp
  • Disponibilitate
    Imediat
  • Confort
    1
  • Stare interior
    Ultrafinisat
  • Anul finisării
    2018
  • Număr balcoane
    1
  • Imobil
    Bloc de apart.
  • Stadiu construcție
    Finalizată
  • An construcție
    2018
  • Construcție nouă
    Da
  • Tip construcție
    Beton
  • Număr etaje clădire
    16

Facilități

Aer condiționat
Apă
Apometre
Aragaz
Bucătărie deschisă
Calorifere
Canalizare
CATV
Centrală imobil
Curent
Faianță
Frigider
Gaz
Geamuri termopan
Gresie
Hotă
Iluminat stradal
Interfon
Internet
Izolație exterioară
Lift
Mijloace de transport în comun
Parchet
Străzi asfaltate
Telefon
Ușă intrare metal
Uși interior celulare
Vopsea lavabilă
Andreea Constantin - Land Estate
Andreea Constantin
Agent imobiliar

0758178109


Solicită chiar acum o vizionare
Telefon
Sună acum Solicită vizionare
Necesare:

Site-ul nu poate funcționa corect fără aceste cookie-uri. Vezi cookie-urile

Statistică:

Strângem statistici anonime despre voi, vizitatorii unici, pentru a vă îmbunătăți experiența dumneavoastră. Vezi cookie-urile

Marketing:

Pentru a ne promova mai eficient serviciile noastre, folosim cookies pentru a vă identifica și a vă oferi proprietăți și servicii personalizate. Vezi cookie-urile

Acest site folosește cookies, află detalii. Alege ce tipuri de cookies dorești să permitem: