ID CP2934533

2 camere la 12 minute de metrou,

ID CP2934533

95,000 €

Apartament cu 2 camere de vânzare
Pantelimon, Bucuresti
52 mp
1975

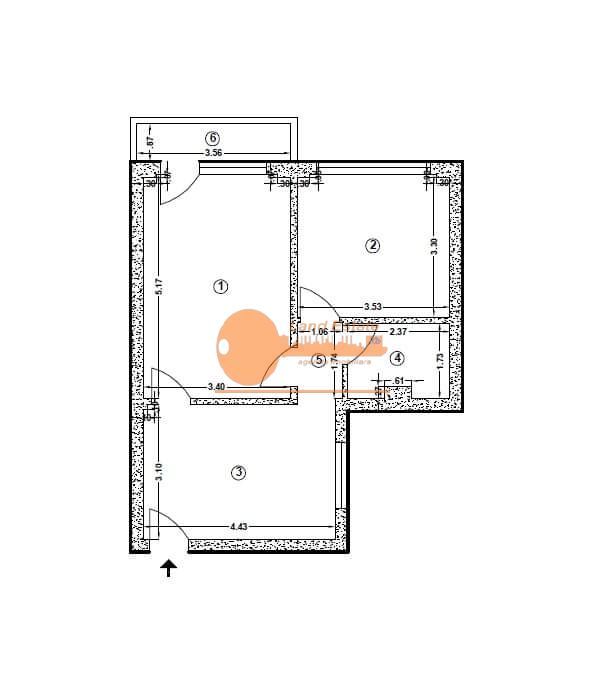
Vă propunem un apartament cu 2 camere, fără risc seismic, situat în Sector 2, Șos. Pantelimon (lângă spital), într-un bloc construit în 1974 și reabilitat termic în 2022.

Detalii apartament

2 camere

compartimentare circulară

etaj 6 / 10

suprafață: 52 mp (inclusiv balcon 3 mp)

balcon închis, pe partea din spate (intrare tot prin spate – zonă mai liniștită)

fără risc seismic

Bucătăria este deschisă, iar apartamentul se vinde mobilat și utilat complet:

aer condiționat

TV Smart 4K

birou + scaun birou

combină frigorifică

cuptor cu microunde

aspirator

mașină de spălat rufe

Nu dispune de loc de parcare dedicat, însă există posibilitatea parcării în zonă.

Facilități & zonă

scară supravegheată video

loc de joacă pentru copii lângă bloc

2 minute până la Parcul Morarilor

acces rapid către Mega Mall, Piața Delfinului, Arena Națională

în apropiere de Spitalul Clinic de Urgență Pantelimon

Transport public: STB 104, 55, 102

Metrou: Costin Georgian – aproximativ 12 minute.

Apartament potrivit pentru locuire sau investiție, într-o zonă bine conectată, cu multiple facilități în imediata apropiere. Disponibil pentru vizionare.

Citește mai mult

  • Tip apartament
    Apartament
  • Compartimentare
    Circular
  • Număr camere
    2
  • Dormitoare
    1
  • Număr bucătării
    1
  • Număr băi
    1
  • Etaj
    6
  • Suprafață utilă
    52 mp
  • Suprafață construită
    65 mp
  • Disponibilitate
    Imediat
  • Orientare
    Sud
  • Confort
    1
  • Stare interior
    Finisat modern
  • Anul finisării
    2022
  • Număr balcoane
    1
  • Imobil
    Bloc de apart.
  • Stadiu construcție
    Finisat
  • An construcție
    1975
  • Tip construcție
    Beton
  • Număr etaje clădire
    10

Facilități

Aer condiționat
Apă
Apometre
Aragaz
Bucătărie deschisă
Bucătărie mobilată
Bucătărie parțial mobilată
Bucătărie parțial utilată
Bucătărie utilată
Cadă
Calorifere
Canalizare
CATV
Contor electric
Curent
Debara
Faianță
Ferestre PVC
Gaz
Geamuri termopan
Glet
Gresie
Iluminat stradal
Interfon
Internet
Izolație exterioară
Lift
Mașină de spălat rufe
Mijloace de transport în comun
Mobilat complet
Parchet laminat
Străzi asfaltate
Supraveghere video
Telefon
Termoficare
Ușă intrare metal
Uși interior celulare
Vedere panoramică
Vedere spre oraș
Vopsea lavabilă
Florin Chirea - Land Estate
Florin Chirea
Agent imobiliar

0761808248


Solicită chiar acum o vizionare
Telefon
Sună acum Solicită vizionare
Necesare:

Site-ul nu poate funcționa corect fără aceste cookie-uri. Vezi cookie-urile

Statistică:

Strângem statistici anonime despre voi, vizitatorii unici, pentru a vă îmbunătăți experiența dumneavoastră. Vezi cookie-urile

Marketing:

Pentru a ne promova mai eficient serviciile noastre, folosim cookies pentru a vă identifica și a vă oferi proprietăți și servicii personalizate. Vezi cookie-urile

Acest site folosește cookies, află detalii. Alege ce tipuri de cookies dorești să permitem: