ID CP2804037

Apartament 2 camere cu centrala – Tineretului la 5 min de metrou

ID CP2804037

107,500 €

Apartament cu 2 camere de vânzare
Tineretului, Bucuresti
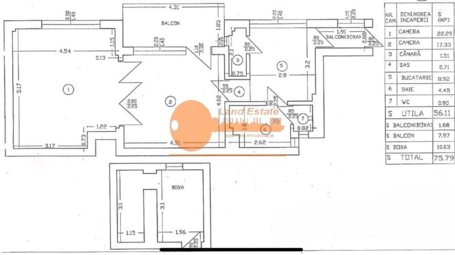
56 mp
1953

De vânzare apartament unicat cu 2 camere, situat la etajul 3 al unui bloc P+4 in zona Tineretului, în apropierea Facultății Titu Maiorescu și la doar 5 minute de metrou.

Imobilul este construit în 1953, solid, neîncadrat în nicio categorie de risc seismic.

Apartamentul are o suprafață utilă de 56 mp și suprafață totală de 75 mp, fiind mobilat și utilat complet, cu centrală termică proprie și balcon cu vedere directă către râul Dâmbovița.

Spațiul se remarcă prin compartimentarea eficientă și luminozitatea naturală, oferind un ambient plăcut și versatil – ideal pentru locuință personală, studio de artă sau spațiu creativ.

56 mp utili | 75 mp total | Etaj 3/4 | An 1953

Centrala proprie | Balcon | Mobilat și utilat

Preț: 107.500 € (ușor negociabil)

Citește mai mult

  • Tip apartament
    Apartament
  • Compartimentare
    Semidecomandat
  • Număr camere
    2
  • Dormitoare
    1
  • Număr bucătării
    1
  • Număr băi
    1
  • Etaj
    3
  • Suprafață utilă
    56 mp
  • Suprafață construită
    76 mp
  • Disponibilitate
    Imediat
  • Orientare
    Sud-Est
  • Confort
    1
  • Stare interior
    Finisat modern
  • Număr balcoane
    1
  • Imobil
    Bloc de apart.
  • Stadiu construcție
    Finisat
  • An construcție
    1953
  • Tip construcție
    Beton
  • Număr etaje clădire
    4

Facilități

Aer condiționat
Apă
Apometre
Aragaz
Bucătărie închisă
Bucătărie mobilată
Bucătărie parțial mobilată
Bucătărie parțial utilată
Bucătărie utilată
Cadă
Calorifere
Canalizare
CATV
Centrală proprie
Contor electric
Contor gaz
Curent
Debara
Faianță
Ferestre PVC
Frigider
Gaz
Geamuri termopan
Glet
Gresie
Hotă
Iluminat stradal
Interfon
Internet
Mijloace de transport în comun
Mobilat complet
Parchet laminat
Străzi asfaltate
Supraveghere video
Telefon
Ușă intrare metal
Uși interior celulare
Vedere panoramică
Vedere spre oraș
Vopsea lavabilă
Florin Chirea - Land Estate
Florin Chirea
Agent imobiliar

0761808248


Solicită chiar acum o vizionare
Telefon
Sună acum Solicită vizionare
Necesare:

Site-ul nu poate funcționa corect fără aceste cookie-uri. Vezi cookie-urile

Statistică:

Strângem statistici anonime despre voi, vizitatorii unici, pentru a vă îmbunătăți experiența dumneavoastră. Vezi cookie-urile

Marketing:

Pentru a ne promova mai eficient serviciile noastre, folosim cookies pentru a vă identifica și a vă oferi proprietăți și servicii personalizate. Vezi cookie-urile

Acest site folosește cookies, află detalii. Alege ce tipuri de cookies dorești să permitem: