ID CP2759864

Apartament 3 camere cu terasă de 100 mp + loc de parcare – complet nou, mobilat și utilat

ID CP2759864

240,000 € + 21% TVA

Apartament cu 3 camere de vânzare
Crangasi, Bucuresti
63 mp
2023

Vă propun spre vânzare un apartament modern, cu 3 camere (inclusiv birou) și o terasă spectaculoasă de 100 mp, ideală pentru relaxare, amenajare de zonă verde sau spațiu de socializare. Proprietatea dispune și de loc de parcare propriu.

📍 Localizare excelentă – la maximum 5 minute de mers pe jos de:

• metrou, tramvai și stații STB

• școală, parc și piață agroalimentară

• magazine (Lidl, Mega Image), sală de fitness, secție de poliție

🏠 Detalii apartament

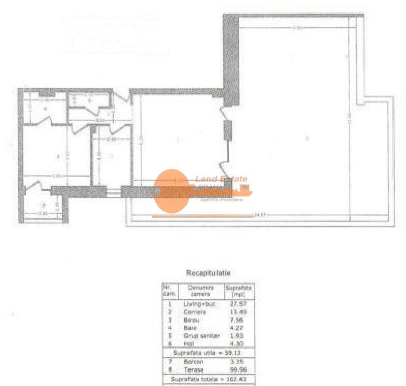
Suprafață utilă: 59,42 mp + terasă 99,96 mp + balcon 3,35 mp

Compartimentare: living cu bucătărie open-space, dormitor matrimonial, birou (sau cameră secundară), 2 băi, hol, balcon și terasă mare

Etaj: superior, cu priveliște deschisă

Stare: complet nou, neutilizat

⚙️ Dotări și finisaje

Încălzire în pardoseală (inclusiv în băi)

Centrala termică Immergas

Electrocasnice premium: plită și cuptor electric, hotă, frigider, mașină de spălat rufe și vase

Două televizoare, două aparate de aer condiționat

Finisaje moderne, mobilier complet nou și decor elegant

Baie matrimonială cu cadă, baie secundară cu duș

Balcon 3,35 mp la dormitorul principal

Terasă de 100 mp cu ieșire TV, sursă de apă și posibilitate de montare pergolă

💶 Preț și condiții de vânzare

Preț apartament + loc parcare: 240.000 € + TVA 21% (total 290.000 €)

Dacă achiziționați ca persoană juridică, se aplică taxare inversă (fără TVA)

Preț ușor negociabil

Se vinde exact ca în fotografii, complet mobilat și utilat

Citește mai mult

  • Tip apartament
    Apartament
  • Compartimentare
    Decomandat
  • Număr camere
    3
  • Dormitoare
    1
  • Număr bucătării
    1
  • Număr băi
    1
  • Etaj
    9
  • Suprafață utilă
    63 mp
  • Suprafață construită
    163 mp
  • Suprafață totală
    163 mp
  • Suprafață terasă
    100 mp
  • Disponibilitate
    Imediat
  • Confort
    1
  • Stare interior
    Finisat modern
  • Anul finisării
    2023
  • Număr balcoane
    1
  • Număr terase
    1
  • Imobil
    Bloc de apart.
  • Stadiu construcție
    Finalizată
  • An construcție
    2023
  • Construcție nouă
    Da
  • Tip construcție
    Beton
  • Număr etaje clădire
    10

Facilități

Aer condiționat
Apă
Apometre
Aragaz
Bucătărie deschisă
Bucătărie mobilată
Bucătărie parțial mobilată
Bucătărie parțial utilată
Bucătărie utilată
Cabină de duș
Cadă
Canalizare
CATV
Centrală proprie
Contor electric
Contor gaz
Curent
Debara
Faianță
Ferestre PVC
Gaz
Geamuri termopan
Glet
Gresie
Hotă
Iluminat stradal
Încălzire prin pardoseală
Interfon
Internet
Izolație exterioară
Lift
Mașină de spălat rufe
Mașină de spălat vase
Mijloace de transport în comun
Mobilat complet
Parcare acoperită
Parchet laminat
Străzi asfaltate
Supraveghere video
Telefon
TV
Ușă intrare metal
Uși interior celulare
Vedere panoramică
Vedere spre oraș
Vopsea lavabilă
WC Serviciu
Florin Chirea - Land Estate
Florin Chirea
Agent imobiliar

0761808248


Solicită chiar acum o vizionare
Telefon
Sună acum Solicită vizionare
Necesare:

Site-ul nu poate funcționa corect fără aceste cookie-uri. Vezi cookie-urile

Statistică:

Strângem statistici anonime despre voi, vizitatorii unici, pentru a vă îmbunătăți experiența dumneavoastră. Vezi cookie-urile

Marketing:

Pentru a ne promova mai eficient serviciile noastre, folosim cookies pentru a vă identifica și a vă oferi proprietăți și servicii personalizate. Vezi cookie-urile

Acest site folosește cookies, află detalii. Alege ce tipuri de cookies dorești să permitem: