ID CP2898415

Garsonieră Iancului | Bloc rabilitat termic

Această proprietate nu mai este activă,
te invităm să vizualizezi proprietăți similare

ID CP2898415

71,000 €

Apartament cu 1 camere de vânzare
Iancului, Bucuresti
33 mp
1979

Vă propunem spre vânzare o garsonieră decomandată, situată în Sector 2, la doar 400 m de stația de metrou Iancului, într-un bloc solid construit în 1979.

Detalii proprietate

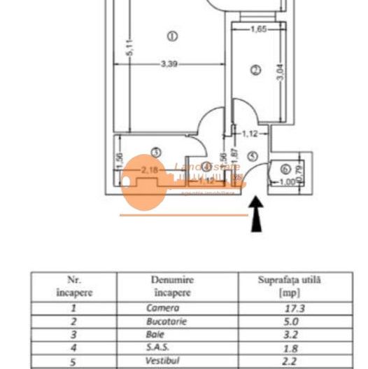
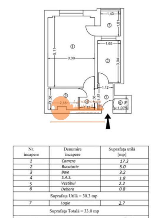
Suprafață: 33 mp

Compartimentare: decomandată

Etaj: 5 din 10

An construcție: 1979

Bloc cu lift

Garsoniera necesită renovare, oferind viitorului proprietar posibilitatea de amenajare integrală după propriul gust — ideală atât pentru locuit, cât și pentru investiție.

Localizare

5 minute de mers pe jos până la metrou Iancului

Acces rapid la transport public

Magazine, piață, școli și servicii în imediata apropiere

Zonă cu cerere ridicată pentru închiriere

Proprietate potrivită pentru cei care caută o investiție bună într-o zonă bine conectată a orașului.

Pentru detalii și vizionări, contactați-ne.

Citește mai mult

  • Tip apartament
    Apartament
  • Compartimentare
    Decomandat
  • Număr camere
    1
  • Dormitoare
    1
  • Număr bucătării
    1
  • Număr băi
    1
  • Etaj
    5
  • Suprafață utilă
    33 mp
  • Suprafață construită
    40 mp
  • Disponibilitate
    Imediat
  • Confort
    1
  • Stare interior
    Necesită renovare
  • Număr balcoane
    1
  • Imobil
    Bloc de apart.
  • Stadiu construcție
    Finisat
  • An construcție
    1979
  • Tip construcție
    Beton
  • Reabilitat termic
    Da
  • Număr etaje clădire
    10

Facilități

Apă
Apometre
Bucătărie închisă
Bucătărie parțial mobilată
Bucătărie parțial utilată
Calorifere
Canalizare
CATV
Contor electric
Curent
Debara
Faianță
Ferestre PVC
Gaz
Geamuri termopan
Glet
Gresie
Iluminat stradal
Interfon
Internet
Lift
Linoleum
Mijloace de transport în comun
Nemobilat
Străzi asfaltate
Supraveghere video
Telefon
Termoficare
Ușă intrare metal
Uși interior celulare
Vedere panoramică
Vedere spre oraș
Necesare:

Site-ul nu poate funcționa corect fără aceste cookie-uri. Vezi cookie-urile

Statistică:

Strângem statistici anonime despre voi, vizitatorii unici, pentru a vă îmbunătăți experiența dumneavoastră. Vezi cookie-urile

Marketing:

Pentru a ne promova mai eficient serviciile noastre, folosim cookies pentru a vă identifica și a vă oferi proprietăți și servicii personalizate. Vezi cookie-urile

Acest site folosește cookies, află detalii. Alege ce tipuri de cookies dorești să permitem: